Living Industria
1211 JE Hilversum
Omschrijving
Een gevarieerd woningaanbod in een groene, autovrije setting. Woongenot staat voorop. Dat is Living Industria. Denk in mogelijkheden, droom van vrijheid. In de Villa’s van Living Industria krijg je hiervoor de ruimte. Riant, luxe en prachtig om te zien. Aantrekkelijk?
Met Living Industria maken we een knipoog naar het verleden met architectuur, details en materialen. Lekker robuust en industrieel. Fijn dat het huis – en het comfort – wel helemaal van nu is. De ruimte trouwens ook.
De Loodsen ogen nog grootser doordat ze per twee samen een dak delen. Sluit jij straks de loodsdeur voor het slapen gaan? Met andere woorden, zie jij jezelf al wonen in deze woning met drie volledige woonlagen? Ideaal voor een groot gezin of voor mensen die op zoek zijn naareen woning waar je écht de ruimte krijgt.
De mooie gemêleerde steen geeft de Ketelhuizen een bijzondere look. Achter de stoere gevels van de Ketelhuizen gaat verrassend veel woonruimte schuil. Hier woon je XL. Je hebt een souterrain en door het platte dak is ook de 2e verdieping volledig bruikbaar. De hele woning telt maar liefst 199 mÇ, inclusief het geïsoleerde souterrain. Hoe wil je hier wonen? Een vide in de woonkamer voor een extra ruimtelijke beleving, 6 (slaap)kamers, een tweede badkamer of... denk XL!
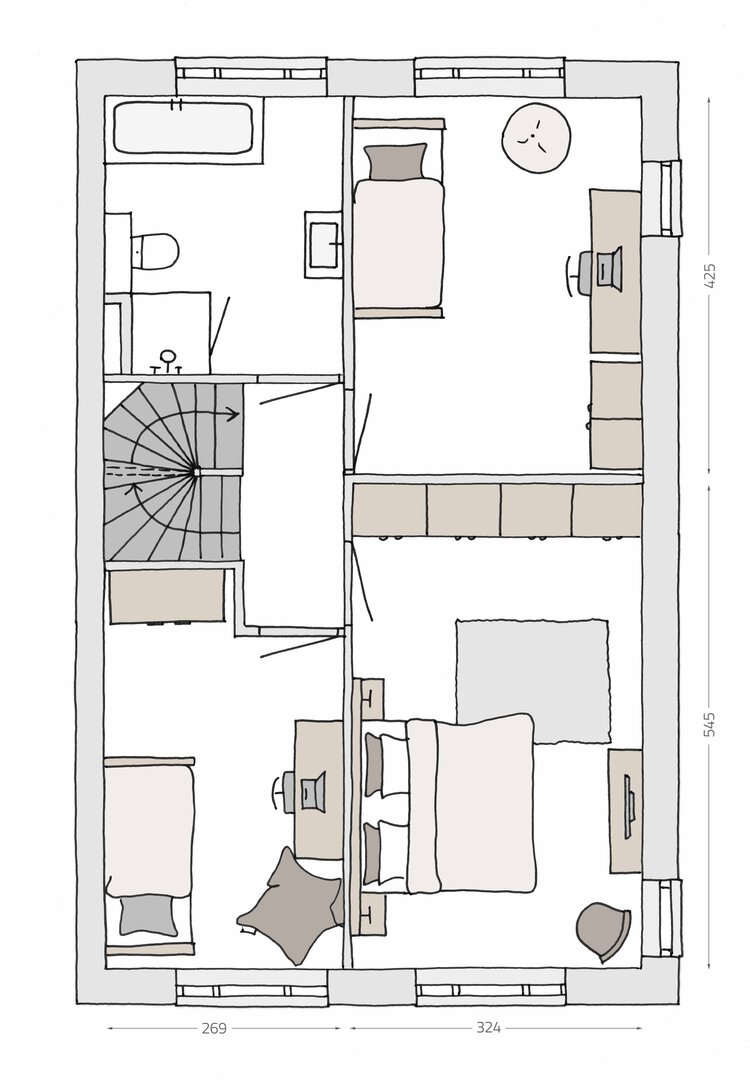
Villa Industria De Ketelhuizen XL
De Ketelhuizen XL zijn groter dan je op het eerste gezicht zou zeggen. Standaard ca. 11 meter diep over drie volle lagen met daaronder nog een geïsoleerd souterrain van ca. 30 m2, 2 eigen parkeerplaatsen onder je woning en een achtertuin van 12 meter diep. XL-wonen op en top. Daarbij heb je volop de mogelijkheid om deze woning helemaal naar jezelf aan te passen.
Hoe wil je wonen? Met ca. 199 m2 woonoppervlak heb je al 5 grote slaapkamers, die uit te breiden zijn naar 6. Het souterrain kun je natuurlijk gebruiken als werkkamer, Home Cinema of gamekamer.
En de woonkeuken. Je kunt zelf kiezen of je deze aan de tuin, aan de voorzijde of in het midden van de woning plaatst. Bijvoorbeeld met mooie kamer-en-suite.
Een vide is mooi, maar kost vaak kostbare m2 vloeroppervlak. Dit huis is zo groot dat dit heel mooi kan. Dan heb je een prachtig ruimtelijke woonkamer of woonkeuken van plaatselijk bijna 6 meter hoog.
Een eigen badkamer bij de masterbedroom met eigen walk-in? Dromen worden werkelijkheid.
Haal bij de makelaar het 90-pagina dikke magazine op met alle informatie van Living Industria en laat je verrassen!
Villa Industria is een compleet nieuwe woonomgeving midden tussen de bestaande bebouwing en groen. De architectuur is geïnspireerd op het rijke, industriële verleden van het gebied. Woongenot staat hier voorop! Dat begint bij ruimte om te kiezen uit verschillende woningen en veel vrijheid bij de indeling van je nieuwe huis. Het vervolg is al net zo fijn. In de groene buurt kunnen kinderen veilig buiten spelen. Villa Industria is bijna autovrij. Parkeerplaatsen genoeg trouwens, maar die zie je niet gelijk. Hier woon je op een toplocatie tussen station en heide, met het gezellige centrum van Hilversum heel dichtbij.
Bij de ontwikkeling van de woningen zelf stond duurzaamheid voorop. Grote indelingsvrijheid, energiezuinig én onderhoudsarm. Zo houd je tijd en geld over om leuke dingen te doen in een huis dat helemaal bij jou past.
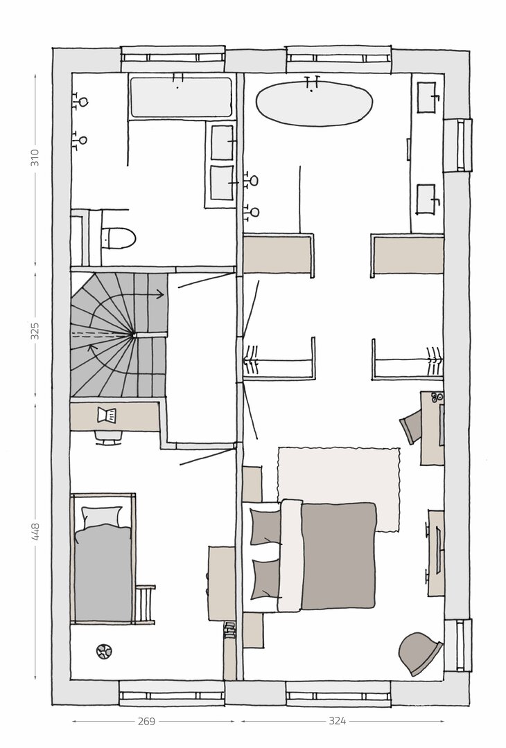
De Loodsen XXL
De Loodsen XXL zijn groot én breed. Met een binnenmaat van 6 meter bij ca. 11 meter over drie volle lagen is dit XXL. 2 eigen parkeerplaatsen in de parkeergarage en een diepe achtertuin op het zuiden van bijna 13 meter maken dit tot huis met heel veel mogelijkheden om deze woning helemaal naar jezelf aan te passen. En het ontwerp? Dat is echt anders. Geïnspireerd op de grote loodsen die vroeger op deze plek hebben gestaan.
Hoe wil je wonen? Met ca. 195 m2 woonoppervlak in zo’sn breed huis heb je heel veel indelingsmogelijkheden. Er zijn zelfs twee trapposities te kiezen. De woonkeuken kun je plaatsen aan de voorzijde, maar ook aan de tuin of in het midden van de woning.
Een vide is mooi, maar kost vaak kostbare m2 vloeroppervlak. Dit huis is zo groot dat dit heel mooi kan. Dan heb je een prachtig ruimtelijke woonkamer of woonkeuken van plaatselijk bijna 6 meter hoog.
Een eigen badkamer bij de masterbedroom met eigen walk-in? Dromen worden werkelijkheid.
Haal bij de makelaar het 90-pagina dikke magazine op met alle informatie van Living Industria en laat je verrassen!
Villa Industria is een compleet nieuwe woonomgeving midden tussen de bestaande bebouwing en groen. De architectuur is geïnspireerd op het rijke, industriële verleden van het gebied. Woongenot staat hier voorop! Dat begint bij ruimte om te kiezen uit verschillende woningen en veel vrijheid bij de indeling van je nieuwe huis. Het vervolg is al net zo fijn. In de groene buurt kunnen kinderen veilig buiten spelen. Villa Industria is bijna autovrij. Parkeerplaatsen genoeg trouwens, maar die zie je niet gelijk. Hier woon je op een toplocatie tussen station en heide, met het gezellige centrum van Hilversum heel dichtbij.
Bij de ontwikkeling van de woningen zelf stond duurzaamheid voorop. Grote indelingsvrijheid, energiezuinig én onderhoudsarm. Zo houd je tijd en geld over om leuke dingen te doen in een huis dat helemaal bij jou past.
De Villa’s
In dit geval zegt één beeld meer dan duizend woorden. Zie jij jezelf hier al wonen? De villa’s zijn geïnspireerd op de directiewoning die je vroeger wel eens zag op een fabrieksterrein. Statig en ontzettend aantrekkelijk door de rijk gedetailleerde gevel. De fraaie – voor Hilversum bekende – chaletstijl biedt zo veel mogelijkheden in indeling en opties dat straks ieder huis uniek zal zijn. Denk hierbij aan een topgevel of langskap, twee trapposities, verschillende nokversieringen, erkers, raamluiken, woonkeuken aan de tuin of aan de straatzijde, speelkamer, veranda en meer.
Hoe wil je wonen? Met ca. 180 tot wel 200 m2 woonoppervlak in dit brede huis heb je heel veel indelingsmogelijkheden. Er zijn zelfs twee trapposities te kiezen. De woonkeuken kun je plaatsen aan de voorzijde, maar ook aan de tuin of in het midden van de woning.
Een eigen badkamer bij de masterbedroom met eigen walk-in? Dromen worden werkelijkheid.
Haal bij de makelaar het 90-pagina dikke magazine op met alle informatie van Living Industria en laat je verrassen!
Villa Industria is een compleet nieuwe woonomgeving midden tussen de bestaande bebouwing en groen. De architectuur is geïnspireerd op het rijke, industriële verleden van het gebied. Woongenot staat hier voorop! Dat begint bij ruimte om te kiezen uit verschillende woningen en veel vrijheid bij de indeling van je nieuwe huis. Het vervolg is al net zo fijn. In de groene buurt kunnen kinderen veilig buiten spelen. Villa Industria is bijna autovrij. Parkeerplaatsen genoeg trouwens, maar die zie je niet gelijk. Hier woon je op een toplocatie tussen station en heide, met het gezellige centrum van Hilversum heel dichtbij.
Bij de ontwikkeling van de woningen zelf stond duurzaamheid voorop. Grote indelingsvrijheid, energiezuinig én onderhoudsarm. Zo houd je tijd en geld over om leuke dingen te doen in een huis dat helemaal bij jou past.
7 minuten rijden naar de snelweg
10 minuten lopen naar de natuur
10 minuten lopen centrum
Kenmerken
Overdracht
| Status | Verkocht |
|---|---|
| Prijs | prijs op aanvraag |
In de buurt
Wij kennen werkelijk iedere straat en elke hoek van Hilversum. Benieuwd wat een buurt je te bieden heeft? We kunnen je er alles over vertellen!






























