Terug naar resultatenPrinsenstraat 17
Prinsenstraat 17
1211 LS HILVERSUM
€ 350.000 k.k.
Omschrijving
Voor wie kansen ziet, is dit er één: een woning met potentie op een plek waar je wilt wonen. Prinsenstraat 17 vraagt om modernisering, maar biedt alle ruimte om er een eigentijds en comfortabel thuis van te maken. Met een charmante basis, een fijne ligging en uitbreidingsmogelijkheden is dit een huis waar je jouw eigen stempel op kunt drukken en waar je op termijn echt iets bijzonders van maakt.
LOCATIE
De woning ligt in een sfeervol en rustig straatje met een prettige, bijna dorpse uitstraling. Tegelijkertijd woon je hier op korte afstand van het centrum. Binnen enkele minuten sta je tussen de winkels, horeca en andere voorzieningen. Die combinatie maakt deze plek extra aantrekkelijk. De straat kenmerkt zich door vergelijkbare karakteristieke woningen, waarbij meerdere buren al hebben laten zien wat er mogelijk is, zoals het realiseren van een dakopbouw.
INDELING
Begane grond:
Via de voortuin bereik je de entree van de woning. De begane grond biedt volop ruimte om een moderne woon-eetkamer met open keuken te realiseren. Aan de achterzijde bevindt zich de tuin, die momenteel grotendeels is bebouwd met een grote berging. Door deze te verwijderen creëer je eenvoudig een prettige en zonnige stadstuin. Het perceel is belast met recht van overpad ten behoeve van de buren.
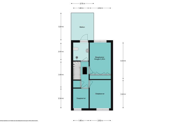
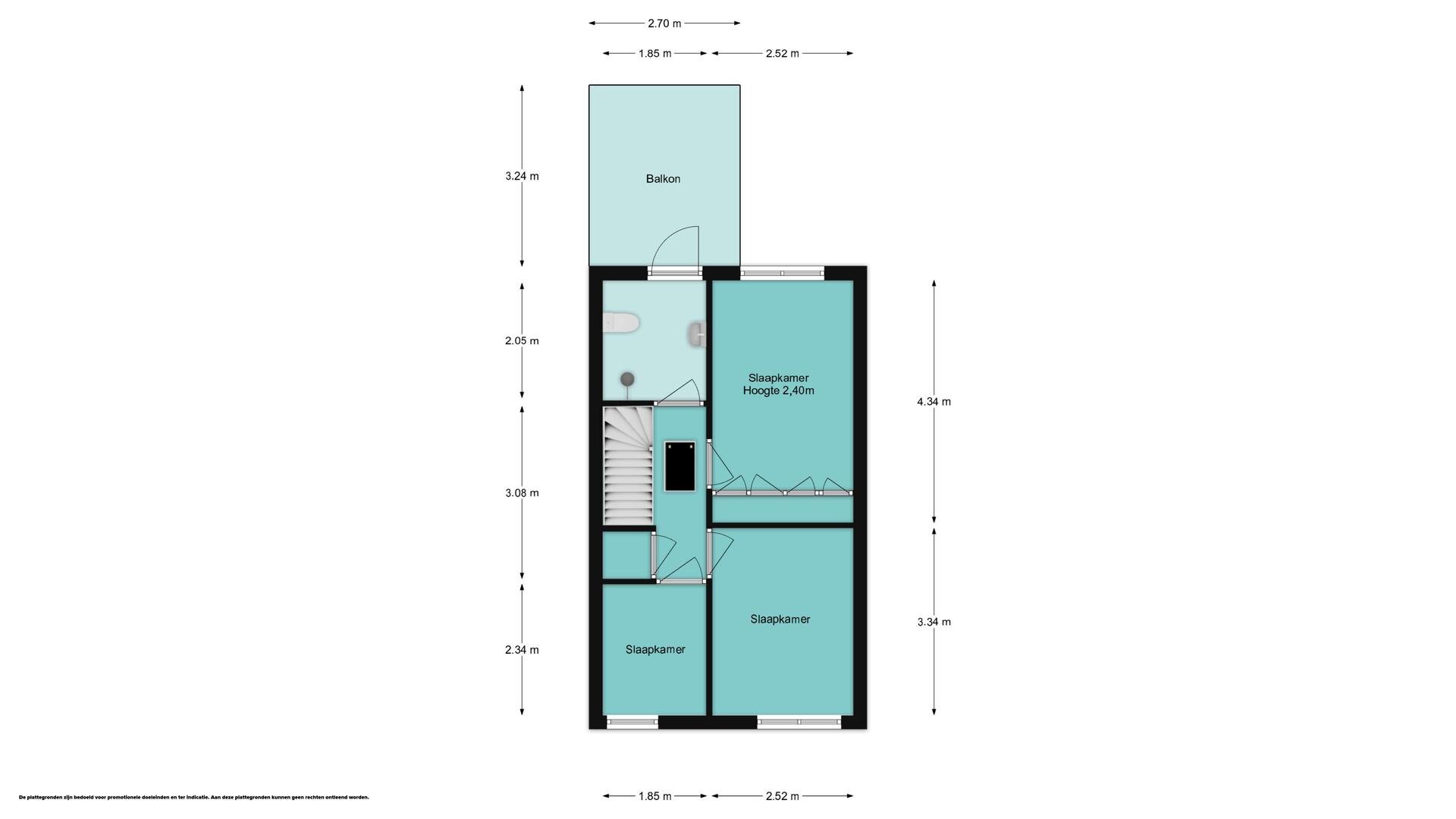
Eerste verdieping:
Op deze verdieping is de indeling al sterk: drie slaapkamers en een badkamer. Alle ruimtes zijn gedateerd, maar de opzet is logisch en biedt een uitstekende basis voor modernisering naar deze tijd.
Mogelijkheden:
Met een dakopbouw kan een volwaardige tweede verdieping worden gerealiseerd. Ook deze woning biedt die potentie. Denk bijvoorbeeld aan het creëren van twee extra slaapkamers, een royale master bedroom met eigen badkamer of juist een fijne werkruimte aan huis.
KENMERKEN
* Bouwjaar 1894;
* Kelder onder de keuken, via luik bij achterdeur bereikbaar;
* Gebruiksoppervlakte wonen 78 m²;
* Volledig te renoveren;
* Drie slaapkamers en badkamer op de eerste verdieping;
* Mogelijkheid tot dakopbouw (o.v.v. vergunning);
* Energielabel G.
Lijkt dit je wat? Bel dan even naar ons kantoor, dan plannen we graag een bezichtiging voor je in.
+ Meer omschrijving
- Minder omschrijving
LOCATIE
De woning ligt in een sfeervol en rustig straatje met een prettige, bijna dorpse uitstraling. Tegelijkertijd woon je hier op korte afstand van het centrum. Binnen enkele minuten sta je tussen de winkels, horeca en andere voorzieningen. Die combinatie maakt deze plek extra aantrekkelijk. De straat kenmerkt zich door vergelijkbare karakteristieke woningen, waarbij meerdere buren al hebben laten zien wat er mogelijk is, zoals het realiseren van een dakopbouw.
INDELING
Begane grond:
Via de voortuin bereik je de entree van de woning. De begane grond biedt volop ruimte om een moderne woon-eetkamer met open keuken te realiseren. Aan de achterzijde bevindt zich de tuin, die momenteel grotendeels is bebouwd met een grote berging. Door deze te verwijderen creëer je eenvoudig een prettige en zonnige stadstuin. Het perceel is belast met recht van overpad ten behoeve van de buren.
Eerste verdieping:
Op deze verdieping is de indeling al sterk: drie slaapkamers en een badkamer. Alle ruimtes zijn gedateerd, maar de opzet is logisch en biedt een uitstekende basis voor modernisering naar deze tijd.
Mogelijkheden:
Met een dakopbouw kan een volwaardige tweede verdieping worden gerealiseerd. Ook deze woning biedt die potentie. Denk bijvoorbeeld aan het creëren van twee extra slaapkamers, een royale master bedroom met eigen badkamer of juist een fijne werkruimte aan huis.
KENMERKEN
* Bouwjaar 1894;
* Kelder onder de keuken, via luik bij achterdeur bereikbaar;
* Gebruiksoppervlakte wonen 78 m²;
* Volledig te renoveren;
* Drie slaapkamers en badkamer op de eerste verdieping;
* Mogelijkheid tot dakopbouw (o.v.v. vergunning);
* Energielabel G.
Lijkt dit je wat? Bel dan even naar ons kantoor, dan plannen we graag een bezichtiging voor je in.
Kenmerken
| Bouwjaar | 1894 |
|---|---|
| Bouwvorm | bestaande bouw |
| Woonoppervlakte | 77 |
| Aantal kamers | 4 |
Overdracht
| Status | Onder bod |
|---|---|
| Prijs | € 350.000 Kosten koper |
| Aanvaarding | in overleg |
Bouw vorm
| Bouwjaar | 1894 |
|---|---|
| Bouwvorm | bestaande bouw |
Indeling
| Woonoppervlakte | 77 |
|---|---|
| Inhoud | 295 |
| Aantal kamers | 4 |
| Slaapkamers | 3 |
| Etages | 3 |
Tuin
| Tuin | Voortuin, Patio atrium |
|---|---|
| Aantal bergingen | 1 |
Parking
| Garage soort | Geen garage |
|---|
In de buurt
Wij kennen werkelijk iedere straat en elke hoek van Hilversum. Benieuwd wat een buurt je te bieden heeft? We kunnen je er alles over vertellen!



Plan een bezichtiging
voor: Prinsenstraat 17
Bel ons op 035 625 20 70 of WhatsApp via 0356252070 voor direct contact. Of laat jouw gegevens achter en wij nemen zo snel mogelijk contact met je op.




