Terug naar resultatenSiemensstraat 21
Siemensstraat 21
1221 CP HILVERSUM
€ 550.000 k.k.
Omschrijving
Deze zeer goed onderhouden en uitgebouwde middenwoning is in 2021 geheel gerenoveerd, heeft 3 slaapkamers en een fraaie achtertuin met een achterom en een berging.
De 2e verdieping is ingemeten als overige inpandige ruimte van 9 m², deze verdieping is zeer functioneel te gebruiken als 3e slaapkamer of als werkkamer.
Het ligt in een rustige en kindvriendelijke éénrichtingsstraat, op loopafstand van winkelcentrum Seinhorst, diverse scholen, het gezellige centrum en NS station Hilversum.
Indeling:
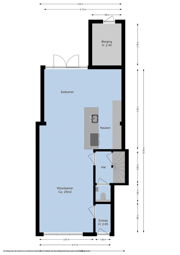
Begane grond:
entree / hal, royale en zeer lichte woon-/eetkamer met uitbouw aan de achterzijde, openslaande deuren naar de tuin met hordeur. Moderne open keuken voorzien van afwasmachine, inductiekookplaat met ingebouwde afzuigfunctie, stoom-oven, combi-oven en koelkast met vriesvak en zeer veel opbergruimte.
Tussenhal met trapopgang naar de 1e verdieping, hier bevindt zich ook de kelderkast met meterkast en het toilet met een wasbakje.
1e Verdieping:
overloop met c.v.-opstelling (Nefit 2021) en aansluiting voor wasmachine/droger, ruime slaapkamer aan de achterzijde met dakkapel, 2e ruim bemeten slaapkamer aan de voorzijde, moderne badkamer met inloopdouche, 2e toilet, ligbad, wastafelmeubel en mechanische ventilatie.
2e Verdieping:
via vaste trap bereikbare, stahoge zolderverdieping met dakkapel aan de achterzijde. Deze ruimte kan goed dienst doen als 3e slaap- of werkkamer.
Bijzonderheden:
- Gebruiksoppervlakte 89 m² (excl. de zolder van ruim 9 m²);
- De gehele begane grond is voorzien van een nieuwe betonnen vloer met vloerverwarming
en fraaie PVC-vloer.
- Berging 6 m²;
- Energielabel B;
- Uitbouw en berging voorzien van groen dak
- Kortom een recent gemoderniseerde woning welke direct te betrekken!
+ Meer omschrijving
- Minder omschrijving
De 2e verdieping is ingemeten als overige inpandige ruimte van 9 m², deze verdieping is zeer functioneel te gebruiken als 3e slaapkamer of als werkkamer.
Het ligt in een rustige en kindvriendelijke éénrichtingsstraat, op loopafstand van winkelcentrum Seinhorst, diverse scholen, het gezellige centrum en NS station Hilversum.
Indeling:
Begane grond:
entree / hal, royale en zeer lichte woon-/eetkamer met uitbouw aan de achterzijde, openslaande deuren naar de tuin met hordeur. Moderne open keuken voorzien van afwasmachine, inductiekookplaat met ingebouwde afzuigfunctie, stoom-oven, combi-oven en koelkast met vriesvak en zeer veel opbergruimte.
Tussenhal met trapopgang naar de 1e verdieping, hier bevindt zich ook de kelderkast met meterkast en het toilet met een wasbakje.
1e Verdieping:
overloop met c.v.-opstelling (Nefit 2021) en aansluiting voor wasmachine/droger, ruime slaapkamer aan de achterzijde met dakkapel, 2e ruim bemeten slaapkamer aan de voorzijde, moderne badkamer met inloopdouche, 2e toilet, ligbad, wastafelmeubel en mechanische ventilatie.
2e Verdieping:
via vaste trap bereikbare, stahoge zolderverdieping met dakkapel aan de achterzijde. Deze ruimte kan goed dienst doen als 3e slaap- of werkkamer.
Bijzonderheden:
- Gebruiksoppervlakte 89 m² (excl. de zolder van ruim 9 m²);
- De gehele begane grond is voorzien van een nieuwe betonnen vloer met vloerverwarming
en fraaie PVC-vloer.
- Berging 6 m²;
- Energielabel B;
- Uitbouw en berging voorzien van groen dak
- Kortom een recent gemoderniseerde woning welke direct te betrekken!
Kenmerken
| Bouwjaar | 1930 |
|---|---|
| Bouwvorm | bestaande bouw |
| Woonoppervlakte | 89 |
| Aantal kamers | 4 |
Overdracht
| Status | Onder bod |
|---|---|
| Prijs | € 550.000 Kosten koper |
| Aanvaarding | in overleg |
Bouw vorm
| Bouwjaar | 1930 |
|---|---|
| Bouwvorm | bestaande bouw |
Indeling
| Woonoppervlakte | 89 |
|---|---|
| Inhoud | 355 |
| Aantal kamers | 4 |
| Slaapkamers | 3 |
| Etages | 3 |
Tuin
| Tuin | Achtertuin, Voortuin |
|---|---|
| Hoofdtuin oppervlakte | 42 |
| Hoofdtuin positie | Noordwest |
| Aantal bergingen | 1 |
Parking
| Garage soort | Geen garage |
|---|
In de buurt
Wij kennen werkelijk iedere straat en elke hoek van Hilversum. Benieuwd wat een buurt je te bieden heeft? We kunnen je er alles over vertellen!



Plan een bezichtiging
voor: Siemensstraat 21
Bel ons op 035 625 20 70 of WhatsApp via 0356252070 voor direct contact. Of laat jouw gegevens achter en wij nemen zo snel mogelijk contact met je op.


